









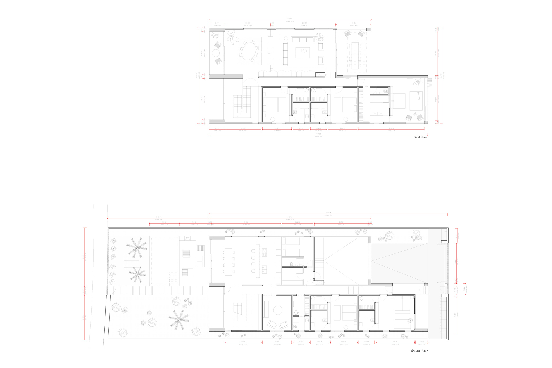
Home H is a two-floor villa on the hills of San Diego (USA) overlooking the sea. The bearing structure of an old villa has been preserved for the new house.
The almost 700 m2 house lays in a narrow plot. The two ends of the villa are connected with two green gardens of royal dimensions.
We proposed a volume with a clear facade towards the main garden. By dividing the facade into four equal spaces a calm volume is created.
Several functions such us entrance, library, kitchen and living room compose this facade.
Alternating terraces, double heights, and covered spaces create a very dynamic and three-dimensional facade.
We have taken special care regarding interior design.
All built-in furniture is made of walnut wood.
Wet areas are finished in mortex.
Non treated oak wood floors can be found in sleeping areas.
The limestone flooring of the common areas extends towards the garden, creating a seamless transition between inside and outside.